Gîte de la Miellerie de Boissy

  • Nous parlons english

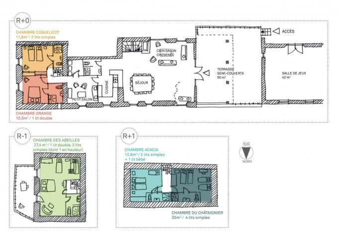
On site of the Boissy honey farm, below Le Serre en Don mountain. Lovely traditional gîte, totally and sympathetically restored. Tasteful décor. Private tennis court. Ideally located between the Eyrieux valley and Ardèche mountain. Large living room (exposed beams and stone walls), fitted kitchen area, separate lounge, utility room. 5 bedrooms (2-5 people), each with own shower room and WC. Large terrace on south side, partly covered. Gîte on 3 levels, in part of owners' farm. Private fishing lake. Separate games room. Le Cheylard 4km.

Classement & labels

Valeurs Parc Naturel Régional
  • 3 stars
  • 3 ears of corn
  • Welcome baby
  • Advertisement by an individual
  • Gîtes of France / Green Pasture
  • Gîtes of France / Green Pasture

Capacité

  • Capacité maximum possible : 15
  • 5 chambre(s)
  • 2 lit(s) double
  • 11 lit(s) simple

Réservation

Tarifs

Weekend (furnished property) : de 840€ à 990 € Mid-week : de 1120€ à 1320 € Week : de 1400€ à 1650 €
Tarif Min. Max.
Weekend (furnished property) (du 10/01/2026 au 08/01/2027) 840€ 990€
Mid-week (du 10/01/2026 au 08/01/2027) 1120€ 1320€
Week (du 10/01/2026 au 08/01/2027) 1400€ 1650€

Moyens de paiement

  • Check
  • Cash

Prestations

Équipements

  • Shelter for bikes/mountain bikes
  • Garden room
  • Terrace
  • Barbecue
  • Boules area
  • Garden
  • semi-detached with owner's house
  • Ping pong table

Services

  • Pets welcome
  • Bedlinen hire
  • Cleaning with supplement
  • Linen hire

Conforts

  • Vacuum cleaner
  • Bath
  • Baby equipment
  • Wi-fi
  • 140 cm bed
  • Fireplace / Wood burning stove
  • Free private internet access
  • Freezer
  • Shower
  • Oven
  • Private washing machine
  • Dishwasher
  • Fridge
  • Hair dryer
  • Television
  • DVD player
  • Bed 90 cm
  • Baby bed
  • Baby chair
  • 4 shower rooms
  • Baby bath
  • Bottle warmer
  • baby-buggy

Prestations sur place